Sonora, CA – What to do with the vacant Tuolumne County Courthouse?
An informational presentation by county staff regarding two plans, one proposing an indoor elevator and the other an outdoor elevator, will be presented at the Historic Preservation Review Commission’s special meeting on Monday, February 27th. The historic courthouse at 45 Yaney Street in Sonora was completed in 1898 and served as the county government building for many years. It was added to the National Register of Historic Places in 1981, by which time it housed the Tuolumne County Superior Court.
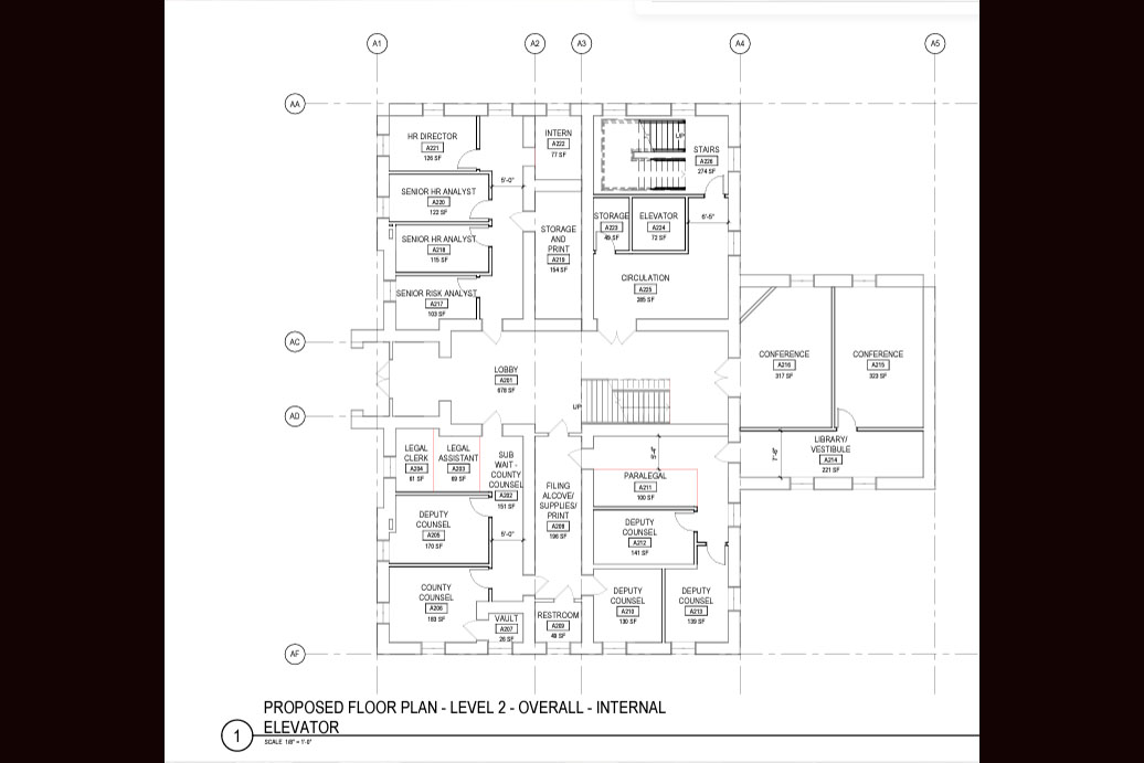
With the Superior Court’s November move to its new location off Old Wards Ferry Road, it has remained vacant, with questions of what to do with the building, as detailed here. County officials noted, “It is the County’s intent to rehabilitate the building, while maintaining as much of the historical integrity as feasibly possible, to once again become a county government service building.”
The proposal includes moving the Tuolumne County Board of Supervisors chambers back into the facility as it once was, along with the County Administrative Office, County Counsel, Human Resources, and the Office of Emergency Services. For this to happen, county staff added, “improvements need to be made, which will include the addition of an elevator and secondary staircase. Both of which are required by law.”
The options for interior and exterior elevator placement have been explored by staff and will be presented to the Committee at Monday’s meeting at 1 p.m. in the 4th-floor conference room of the A.N. Francisco Building, also on Yaney Avenue across from the courthouse.
For more background information on the plans and to view floorplans, click here.

